安徽/合肥-2026-04-29 00:00:00
徽商银行生产数据中心供配电工程项目招标答疑澄清
**********
徽商银行生产数据中心供配电工程招标公告
**********
徽商银行生产数据中心供配电工程项目招标答疑澄清
各潜在投标人:
现对徽商银行生产数据中心供配电工程项目(招标项目编号:**************/**************)招标文件做出如下答疑澄清。
一、招标文件答疑
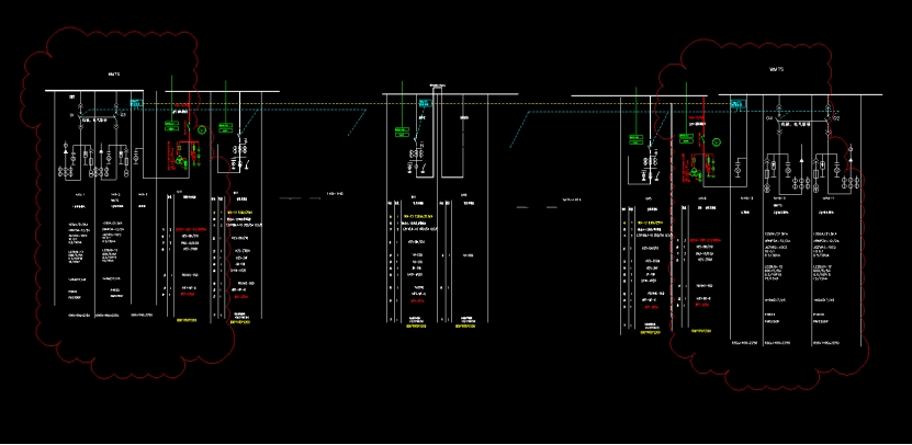
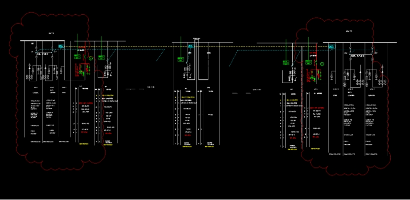
*.图纸上的方案,**放在市电、油机柜之前,考虑到施耐德、***及西门子中压***完全按照图纸方案均实现不了,是否可以以下调整:**消弧消谐柜更换位置,放在市电、油机柜之后;取消进线柜,直接用双电源市电进线柜取代,图纸中***采用三面柜子做,这样总体柜子数量不变;考虑到中压四进线一母联逻辑控制的总体考虑,增加对母联和负载的控制功能,完成整体控制功能。详见修改后图纸见下图。请问:是否可以这样深化实施?

回复:本次招标原图方案已通过当地供电局专家审图,中标后厂家可根据自身产品特点进行深化设计,深化方案实施前需提前与设计单位及当地供电部门沟通确认,保证供电验收及安全可靠性要求,报价不予调整。
*.**消弧消谐装置有品牌要求,是三大家原厂柜配置一次消谐、二次消谐装置?请问:是否可以这样深化实施?
回复:按本项目招标文件品牌参考表实施。
*.招标文件第***页品牌参考表第**条 *.***开关柜中推荐品牌西门子 *********备注为西门子中压开关技术(无锡)有限公司,根据西门子品牌方官方业务调整公告:西门子工厂自动化工程有限公司无锡分公司已于****年*月**日停止低压开关柜相关业务运营,并于****年*月*日完成注销。目前,西门子******* **低压开关柜原厂唯一生产基地已调整为镇江西门子母线有限公司。为确保投标产品与原厂实际生产主体一致,保证供货合法性、合规性及项目履约质量,本条款中“西门子中压开关技术(无锡)有限公司”是否可据实变更为“西门子 ******* ** 镇江西门子母线有限公司”?
回复:不予调整,按本项目招标文件品牌参考表实施。
*.图纸上的方案,**放在市电、油机柜之前,考虑到施耐德、***及西门子中压***完全按照图纸方案均实现不了,是否可以以下调整:
●**消弧消谐柜更换位置,放在市电、油机柜之后;
●取消进线柜,直接用双电源市电进线柜取代,图纸中***采用三面柜子做,这样总体柜子数量不变;
●考虑到中压四进线一母联逻辑控制的总体考虑,增加对母联和负载的控制功能,完成整体控制功能。
详见修改后图纸见下图。
请问:是否可以这样深化实施?
回复:本次招标原图方案已通过当地供电局专家审图,中标后厂家可根据自身产品特点进行深化设计,深化方案实施前需提前与设计单位及当地供电部门沟通确认,保证供电验收及安全可靠性要求,报价不予调整。
*.本项目要提供单个合同金额不低于 **** 万元的供配电工程施工业绩。鉴于本工程是****电压变****的供配电工程,我司提供*****变****变电站工程或*****变****变电站工程,是否满足贵司的招标业绩要求?
回复:予以认可,但须同时满足招标文件其他要求,评标委员会将根据招标文件要求提供的业绩证明材料予以评审。
*.招标文件第四章合同条款及格式第三节专用合同条款*.承包人*.*承包人的一般义务中规定“(**)承包人应履行的其他义务:*)协助梳理设备台账、进行设备重要度分级并制定运维计划,协助建立和健全高低压供配电设施相关技术资料。*)对电器设备开展日常月度巡视、特殊巡视、预防性试验等工作,全面准确掌握运行状况。*)依据定期巡视、特殊巡视、预防性试验结果,对设备状态进行专业分析总结,做好记录并上报甲方。*)定期巡视周期:*次/月,每月第一周或双方协商。*)重大节假日前安全检查:每年五一、十一、春节前安全检查一次。*)遇有下列情况,开展特殊巡视:①设备负荷有显著增加(如迎峰渡夏时),每月在定期巡视基础上增加*次特殊巡视。②设备检修或改变运行方式后,增加*次特殊巡视。③根据检修或试验情况,有薄弱环节或可能造成缺陷,在缺陷消除前,增加*次特殊巡视。④设备存在严重缺陷或缺陷有所发展时在缺陷消除前,增加*次特殊巡视。⑤存在外力破坏或在恶劣气象条件下可能影响安全运行的情况,在情况消除前,增加*次特殊巡视。⑥甲方重要保供电任务,包含不局限于重大节日活动供电保障、甲方年终决算等。”设备台账梳理、运维计划制定、日常月度巡视、特殊巡视、预防性试验、重大节假日安全检查等义务的起止时间和预防性试验的工作内容,招标文件未予以明确,请予以明确。
回复:(*)起止时间与本项目质保期一致;
(*)预防性试验的工作内容详见本答疑附件《变电所维保及电气预防性试验》。
*.签约合同价与合同价格中,合同价格未列具体明细金额,是否需列明建安、设备、其他各部分合同金额,并分别按照设备**%、施工*%和其他部分*%税率开具发票?还是统一按*%计税报价?
回复:本项目增值税税率按照建安工程税率执行(必须提供建安工程类专票)。
*.本项目包含部分外线施工,本工程外线设计是否得到供电部门相关批复?
回复:本工程外线设计已得到供电部门相关批复。
*.本项目招标文件《暂估价一览表》中未体现暂估价,但根据“徽商银行生产数据中心供配电工程*工程量清单及控制价”中,其中材料、设备都是以暂估价计入,费用共计********.**元,暂估价金额占比非常大。暂估价为不可竞争费用,应单独列明暂估价部分的设备具体数量及单价,而“徽商银行生产数据中心供配电工程*工程量清单及控制价”中并未单独列明。
回复:本项目招标不设暂估价,招标文件《暂估价一览表》不需要填写。最新的清单控制价文件以本答疑附件为准。
**.*#分配和*#分配****开关柜供*路(柜号****/*****/****/*****)****电缆至***中压双电源切换柜,请问此****电缆******************是否包含在本次招标范围内?招标清单无此工程量。如图:

回复:含在本次招标范围内。详见《徽商银行生产数据中心供配电工程****及****设备安装》清单序号:**、**。
**.“徽商银行生产数据中心供配电工程****及****设备安装”中*******柜号系统中无此柜号,设计图纸到*******柜号截止,请问此柜设计是否遗漏?


回复:此柜设计未遗漏,工程量清单已调整,最新的清单控制价文件以本答疑附件为准。
**.请澄清确定:品牌表中(****),施耐德“中置柜”与“高压柜”公司为:施耐德电气(厦门)开关设备有限公司。原”施耐德开关(苏州)有限公司”已关闭、产线搬移,请确认!
回复:可采用施耐德电气(厦门)开关设备有限公司。
**.根据招标文件品牌参考表:

经与上述厂家联系,上述厂家回复:原”施耐德开关(苏州)有限公司”已关闭、产线搬移,现施耐德中压柜公司为:施耐德电气(厦门)开关设备有限公司,现请确认上述参考品牌是否以品牌方说明为准?
回复:可采用施耐德电气(厦门)开关设备有限公司。
**.招标文件品牌参考表中母线槽品牌如下:

经与上述三品牌确认,招标文件中****,****母线槽上述三品牌均不生产,烦请招标人核实或更改?
回复:以上要求为低压母线槽,高压母线由高压原厂柜生产厂家配套提供,确保安全可靠。
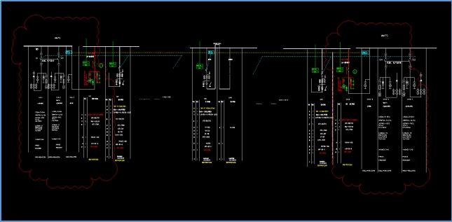
**.关于招标图纸***设置,经与参考品牌(三家均已咨询)三家给出答复如下:“图纸上的方案,**放在市电、油机柜之前,考虑到施耐德、***及西门子中压***完全按照图纸方案均实现不了,是否可以以下调整:
●**消弧消谐柜更换位置,放在市电、油机柜之后;
●取消进线柜,直接用双电源市电进线柜取代,图纸中***采用三面柜子做,这样总体柜子数量不变;
●考虑到中压四进线一母联逻辑控制的总体考虑,增加对母联和负载的控制功能,完成整体控制功能。
详见修改后图纸见下图。”
请问:是否可以这样深化实施?

回复:本次招标原图方案已通过当地供电局专家审图,中标后厂家可根据自身产品特点进行深化设计,深化方案实施前需提前与设计单位及当地供电部门沟通确认,保证供电验收及安全可靠性要求,报价不予调整。
**.请问****变电所的图纸中,***是否表示清单里的“中央信号屏”的安装位置?

回复:是表示清单里的“中央信号屏”的安装位置。
**.招标文件里招标范围包含“设备基础及接地施工”,清单中配电房有地面环氧漆和墙顶面涂料两项。请问招标范围是否包含配电房地坪回填、电缆沟、电缆沟支架、抹灰、门窗等施工内容?
回复:本次招标范围不含配电房地坪回填、电缆沟、抹灰、门窗内容。
**.招标文件****页**条描述技术规格书及工程量清单中要求提供的相关资料作为履约验收的标准,投标时无需提供,须在合同签订后适时按招标人要求及投标人投标文件向招标人提供,未按要求提供或者提供不符合要求的,招标人有权解除合同,并提交公共资源交易监督管理部门处理。是否可以理解为随招标文件共同发布的徽商银行生产数据中心供配电工程技术规格书里面要求投标时提供的资料可以在中标后再提供?
回复:技术规格书及工程量清单中要求提供的相关资料作为履约验收的标准,投标时无需提供,须在合同签订后适时按招标人要求及投标人投标文件向招标人提供,未按要求提供或者提供不符合要求的,招标人有权解除合同,并提交公共资源交易监督管理部门处理。若项目履约中,招标人发现中标人投标文件中提供虚假资料及承诺的,招标人有权解除合同并提请公共资源交易监督管理部门按相关规定进行相应处罚。
二、招标文件澄清
*.本项目招标文件第四章合同条款及格式第三节专用合同条款**.*.*更正为:
“**.*.* 发包人违约的责任
发包人违约责任的承担方式和计算方法:
(*)因发包人原因未能在计划开工日期前*天内下达开工通知的违约责任:经发包人确认后工期顺延,费用双方协商解决。
(*)因发包人原因未能按合同约定支付合同价款的违约责任: 双方协商解决。
(*)发包人违反第**.*款〔变更的范围〕第(*)项约定,自行实施被取消的工作或转由他人实施的违约责任:双方协商解决。
(*)发包人提供的材料、工程设备的规格、数量或质量不符合合同约定,或因发包人原因导致交货日期延误或交货地点变更等情况的违约责任:双方协商解决。
(*)因发包人违反合同约定造成暂停施工的违约责任:经发包人确认后工期顺延,费用双方协商解决。
(*)发包人无正当理由没有在约定期限内发出复工指示,导致承包人无法复工的违约责任:双方协商解决。
(*)其他:双方协商解决。”
*.本项目招标文件第七章技术标准和要求五、材料与设备要求中品牌参考表序号**母线槽中“*************”变更为“************Ⅱ”;
*.本项目最高投标限价由********.**元(含暂列金额:*******元)变更为“********.**元(含暂列金额:*******元)”;
*.本项目修改后的清单、控制价详见附件。
*.本项目投标截止时间及开标时间调整为****年*月**日**:**(北京时间),招标文件获取截止时间延长至开标时间。
*.本项目开标地点调整为:合肥市滨湖新区南京路****号要素交易市场*区(徽州大道与南京路交口)*楼**号开标室。
注:此公告视同招标文件的组成部分,与招标文件具有同等法律效力。
招标人:徽商银行股份有限公司
联系人:车工
电话:*************
招标代理机构:安徽省招标集团股份有限公司
项目负责人:常玲、方蕾
电话:*************、***********
日期:****年*月**日




