宝辰花园项目规划设计调整方案批前公示
2026-04-21
安徽/淮南 招标采购
宝辰花园项目规划设计调整方案批前公示
安徽/淮南-2026-04-21 00:00:00
安徽/淮南-2026-04-21 00:00:00
宝辰花园项目规划设计调整方案批前公示
调查状态:进行中 征集时间:********** **:** 截止日期:********** **:**
现将宝辰花园项目规划设计调整方案予以批前公示,征求相关利害关系人意见和建议。
公示时间:****年*月**日至****年*月**日
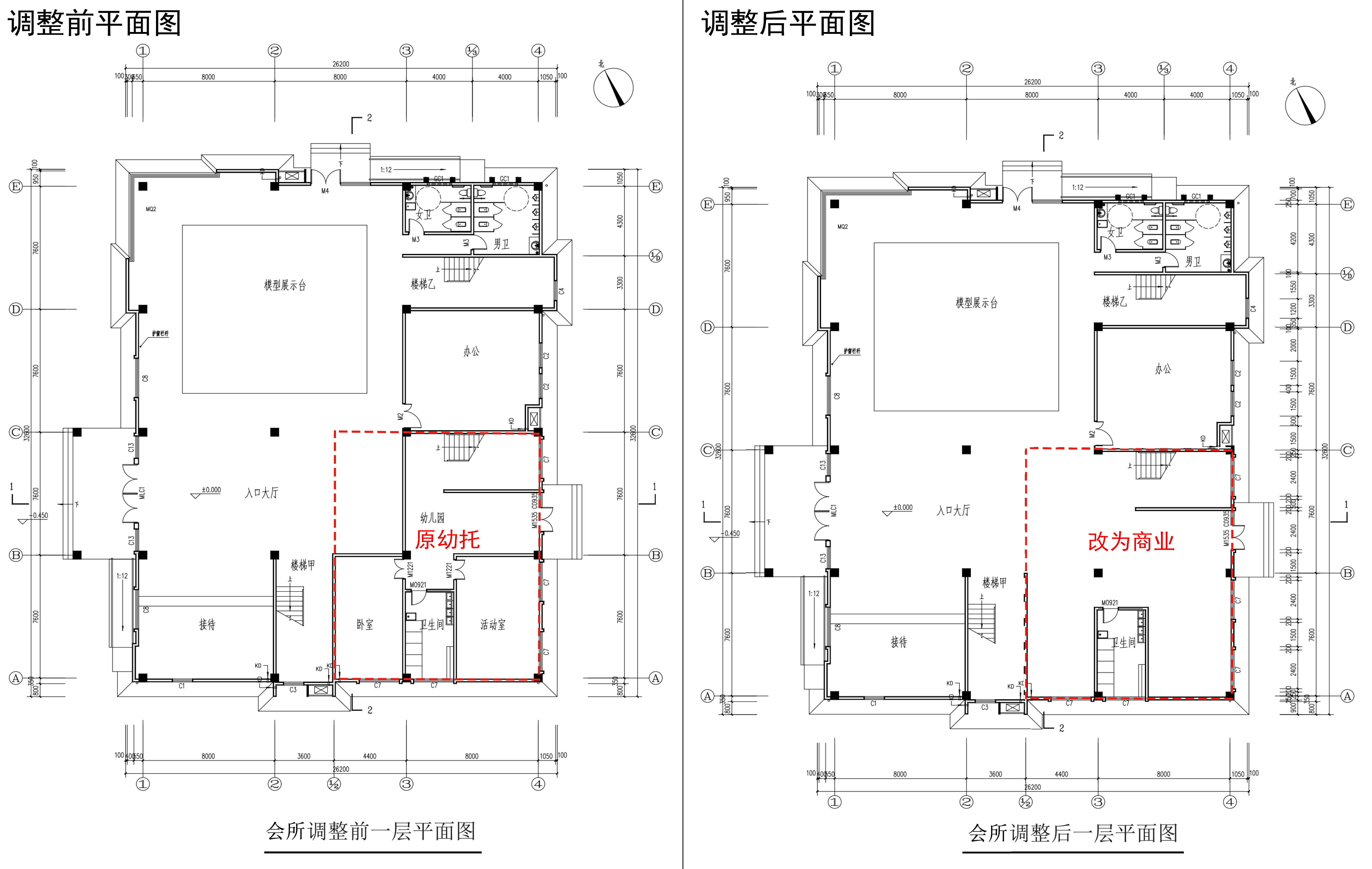
项目地块位于淮南市潘集区齐云山路东侧、长江路南侧、经二路西侧、黄河路北侧,用地面积约*****.*平方米。为解决业主办理不动产权证问题,现建设单位拟调整幼托、物业管理用房及商业会所的平面布局。本次规划设计调整内容包括:
*.经潘集区教育局论证,该项目地块周边幼儿园学位可以满足该项目需求,拟取消商业会所局部***层的幼托(建筑面积约***平方米),改为商业;将*#商住楼商业裙房***层局部调整为非营利性公益校外未成年人心理健康辅导中心(建筑面积约***平方米),并无偿移交给潘集区教育局;
*.将商业会所局部*层的物业管理用房(***平方米)调整至*#商住楼商业裙房***层(建筑面积约***平方米)。
调整后该项目容积率、建筑密度、绿地率、建筑轮廓等无变化。
相关利害关系人可网上留言或电话、现场反馈(淮南市自然资源和规划局网站同步公示)。
地址:山南新区和风大街**号市政务中心*座市自然资源和规划局窗口。
反馈电话:************(工作日*:*****:**,**:*****:**)
规划设计调整方案及技术指标以最终审定方案为准。







调查项目
*、请发表您的看法
*、反馈人姓名(必填)
*、反馈人手机号码(必填)
*验证码:



