陕西/西安-2026-04-08 17:16:15
西安延腾置业有限公司自建共有产权住房项目工程
施工总承包一标段栏杆扶手
招标公告
*、招 标 人:陕西建工集团股份有限公司
*、招标项目:西安延腾置业有限公司自建共有产权住房项目工程施工总承包一标段
*、招标方式:公开招标
*、招标范围:本项目栏杆扶手工程
*、招标时间:****年*月**日*****年*月**日(具体以平台发布时间为准)
*、招标地点:此次招标事项全部在陕建云采集采招标平台(****://***.******.***)上进行,所有招标文件、答疑及投标文件的递交均需在此平台上进行发布、递交。各投标单位需严格按系统规定投标截止时间在集采平台完成投标,逾期未投标按无效投标处理。
*、投标人资格要求:
(*)、具备法律主体资格,具有独立订立及履行合同的能力。
(*)、具备国家有关部门、行业或公司要求必须取得的质量、计量、安全、环保认证及其他经营许可;在有关部门和行业的监督检查中没有不良记录;与招标方没有不良合作记录。
(*)、具有一定的经营规模和服务能力。
(*)、具有良好的商业信誉和健全的财务会计制度。
(*)、投标方能够提供足额的增值税专用发票。
(*)、符合工程要求,在陕建电子商务平台上注册的合格供应商。
(*)、投标单位必须具有合法营业执照且营业执照经营范围中明确有与招标内容相同的经营范围,在法律和财务上独立且合法运作,具有法人地位和独立签订合同的能力,严禁乙方再进行分包。
(*)、投标人增值税纳税人资格为一般纳税人,投标人具有良好的银行资信和商业信誉,没有处于被责令停业或破产状态,且资产未被重组、接管和冻结。
(*)、具有生产或销售与招标材料相同三年以上良好业绩,在使用中未发现重大的质量问题或已有有效的改进措施,近*年内未发生合同供货履约方面或质量方面的诉讼案件。投标人具有可靠的供货保障能力,其业绩突出、信誉可靠。
(**)、本次招标不接受联合体投标。
(**)、招投标报名过程中有“已签收未报名”的供应商,资格审查不予通过。
(**)、云采平台系统提示有风险预警的供应商,招标人有权拒绝其参与投标。
*、质量:应满足招标文件及图纸相关技术质量相关要求;
*、招标清单:
栏杆扶手工程报价清单
序号 | 名称 | 项目特征 | 单位 | 工程量 | 备注 |
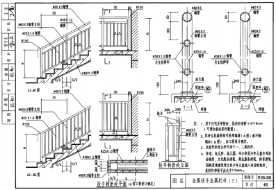
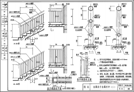
* | 金属扶手带栏杆(楼梯间) | [项目特征] *.高度:***** *.扶手及立柱材料规格:Φ****钢管 *.栏杆材料规格:Φ****.*钢管,底部栏杆Φ****.*钢管 *.做法参陕********/** [工作内容] *.制作 *.运输 *.安装 | * | ****.* |
|
* | 金属扶手带栏杆(车库坡道顶) | [项目特征] | * | *** |
|
* | 玻璃栏板(连廊顶、采光井、女儿墙) | [项目特征] *.高度:***** *.扶手材质、规格:****不锈钢扶手与*厚不锈钢板焊接 *.栏板材质、规格:**.**厚钢化夹层玻璃 *.立柱材质、规格:*型不锈钢立柱,规格*****与*****不锈钢立柱组合,间距@****** *.做法详见********,****,**** [工作内容] *.制作 *.运输 *.安 | * | ***.** |
|
* | 玻璃栏板(连廊) | [项目特征] *.高度:***** *.扶手材质、规格:*****拉丝不锈钢椭圆管扶手 *.栏板材质、规格:**厚钢化夹层玻璃栏板 *.成品组合钢立柱@**** *.做法详见********/*** [工作内容] *.制作 *.运输 *.安装 | * | ****.* |
|
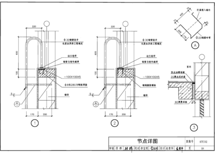
* | 钢栏杆(阳台) | [项目特征] *.高度:***** *.上横杆、下横杆固定在两端混凝土墙上;立柱焊接至预埋件上,每个预埋件用*个膨胀螺栓固定。 *.上横杆、下横杆、立柱,均为镀锌钢矩管,规格为*******.*镀锌钢矩管;竖杆*******.*镀锌方钢管;预埋件采用********。 *.下横杆与混凝土栏板基面净距****,竖钢净间距不大于*****。 *.栏杆平面位于企口内,靠近室内一侧。 *.油漆采用聚氨酯粉末喷涂,颜色同铝合金门窗型材颜色。 *.工厂制作,不允许拼接接长,现场安装和补漆。 *.做法详见联系单 [工作内容] *.制作 *.运输 *.安装 | * | ****.** |
|
* | 玻璃栏板(配套公建屋面) | [项目特征] | * | ***.** |
|
* | 平台栏杆(屋面楼梯间) | [项目特征] | * | **.* |
|
* | 平台栏杆(屋面南侧) | [项目特征] | * | ***.** |
|
* | 护窗栏杆(飘窗) | [项目特征] | * | ****.* |
|
** | 护窗栏杆(屋面设备间) | [项目特征] | * | *.** |
|
** | 护窗栏杆(屋面电梯机房旁) | [项目特征] | * | **.** |
|
** | 护窗栏杆(配套公建) | [项目特征] | * | ***.** |
|
** | 不锈钢栏杆(楼梯间) | [项目特征] | * | **.** |
|
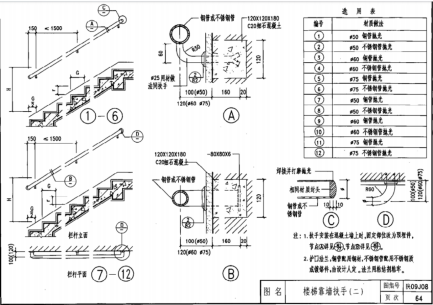
** | 靠墙扶手(地下车库楼梯间) | [项目特征] | * | ***.** |
|
** | 钢爬梯(消防水池) | [项目特征] | * | *.** |
|
** | 钢爬梯(风井) | [项目特征] | * | *.** |
|
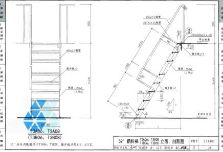
** | 钢斜梯(屋面) | [项目特征] | * | *.** |
|
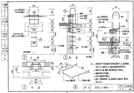
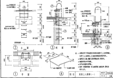
** | 屋面上人梯 | [项目特征] | * | *.** |
|
**、招标联系人:王宇航
**、招标联系人电话:***********
**、应答时间:截止应答时间****年*月**日
**、报名阶段投标单位需上传营业执照、安全许可证附件,否则资审不予通过。
西安延腾置业有限公司自建共有产权住房项目工程施工总承包一标段
**** 年*月*日





















