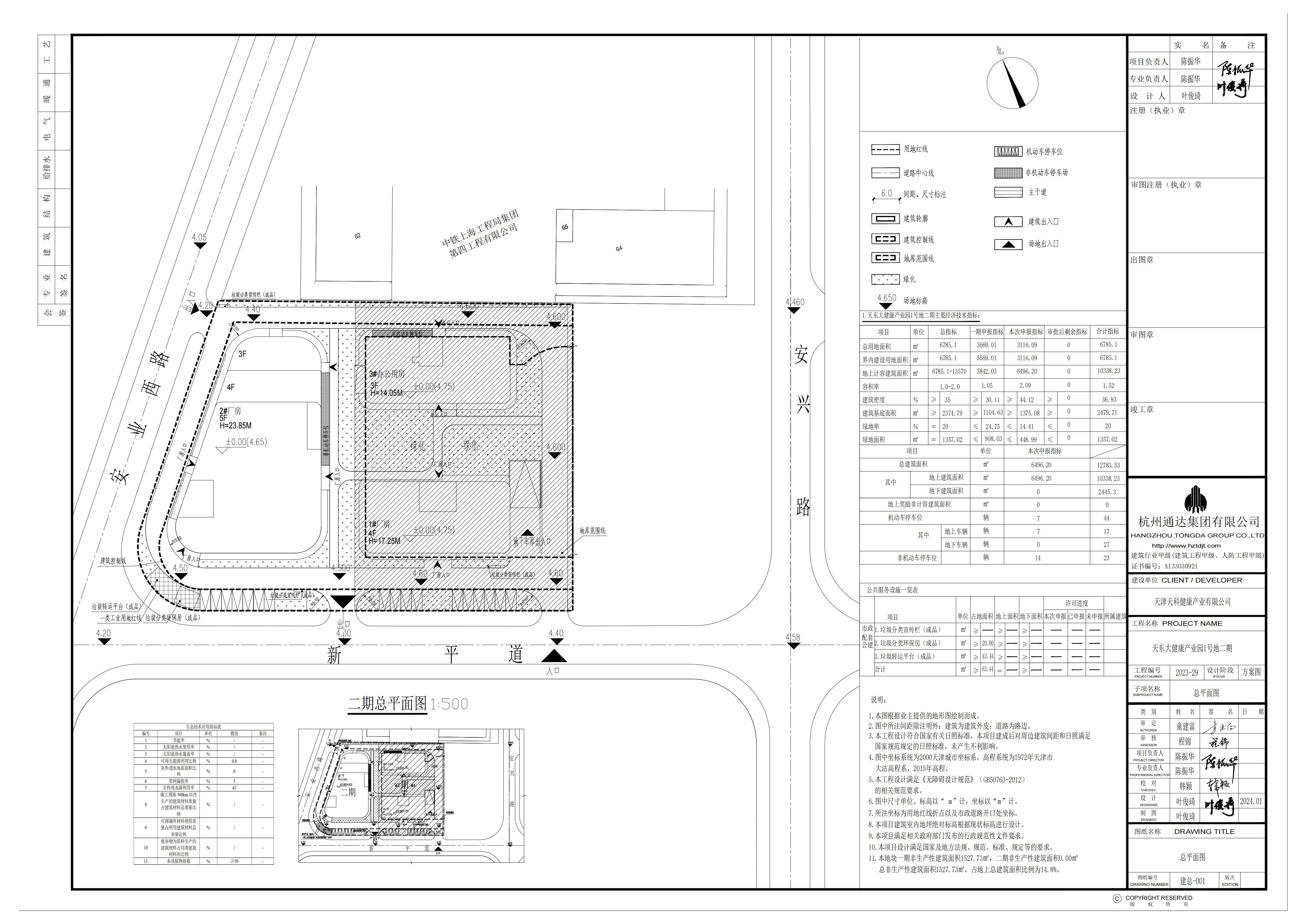
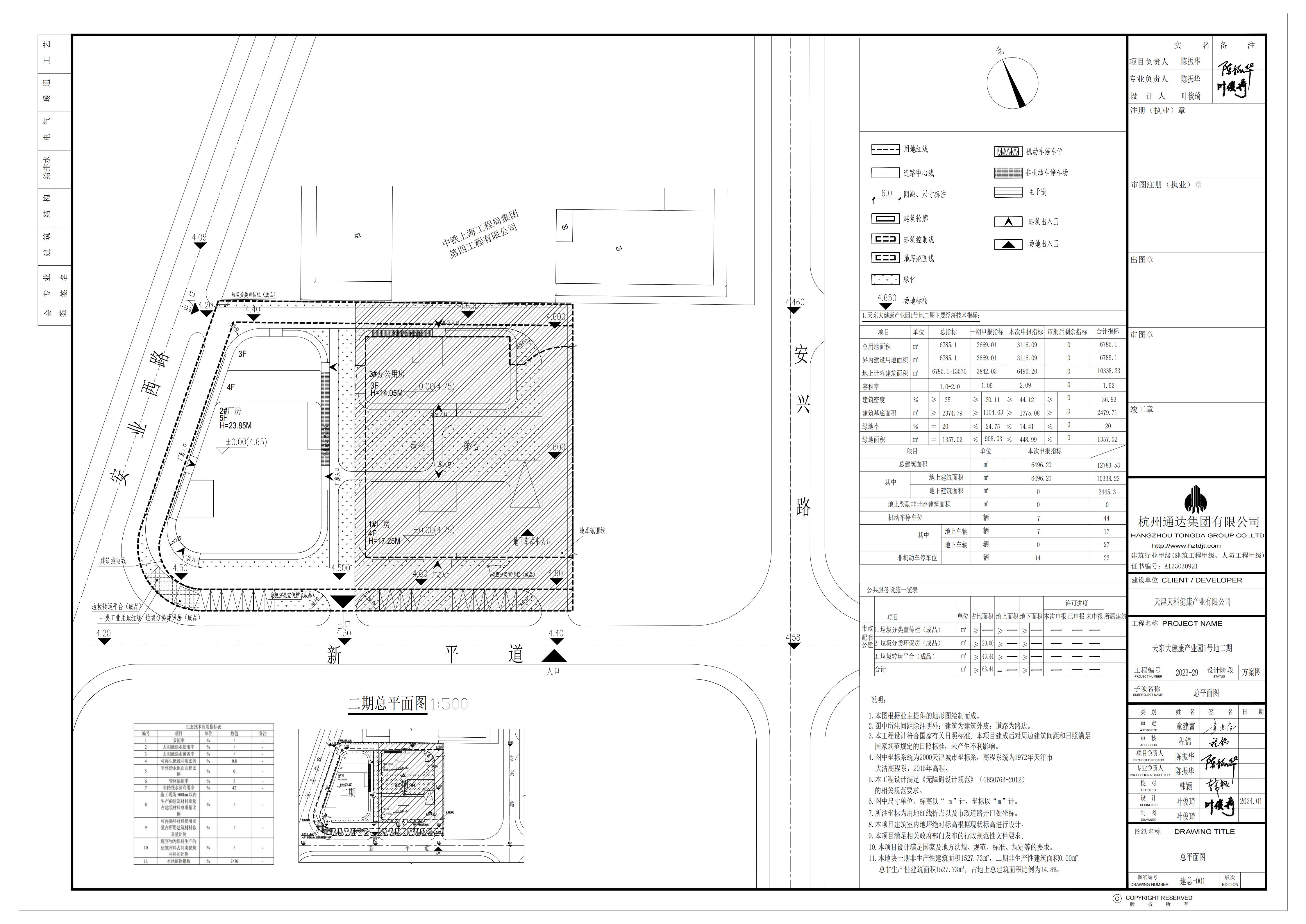
关于天东大健康产业园1号地二期项目方案总平面图的公布
2026-03-09
天津 审批|立项|规划
关于天东大健康产业园1号地二期项目方案总平面图的公布
天津-2026-03-09 00:00:00
天津-2026-03-09 00:00:00
关于天东大健康产业园*号地二期项目方案总平面图的公布
发布时间:
****年**月**日 **:**
发布来源:建设局
大
中
小
依据《中华人民共和国城乡规划法》、《天津市城乡规划条例》的有关要求,现将天东大健康产业园*号地二期项目方案总平面图进行公布,公布期限为信息发布之日起至建设项目规划验收合格为止。

附件:



