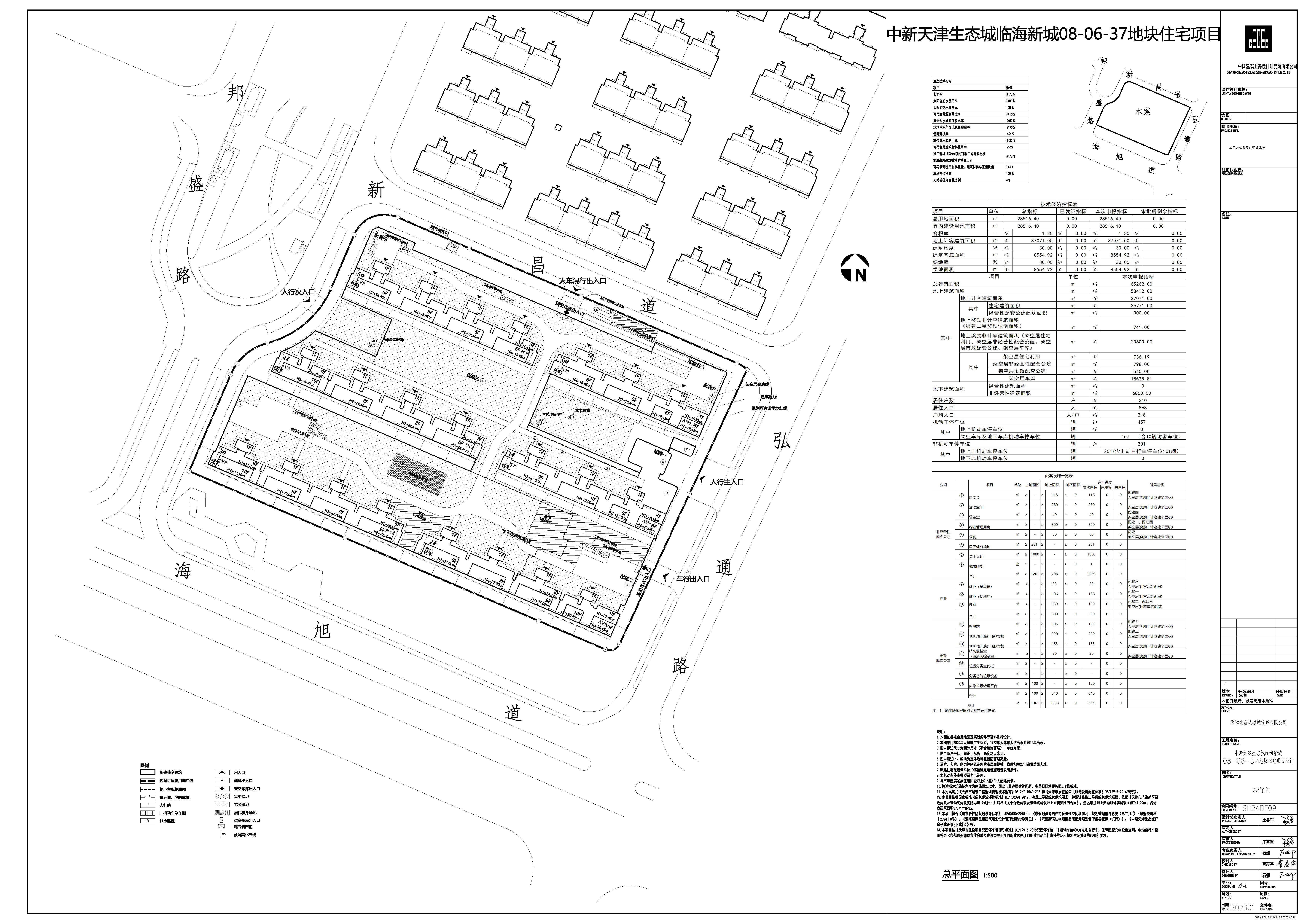
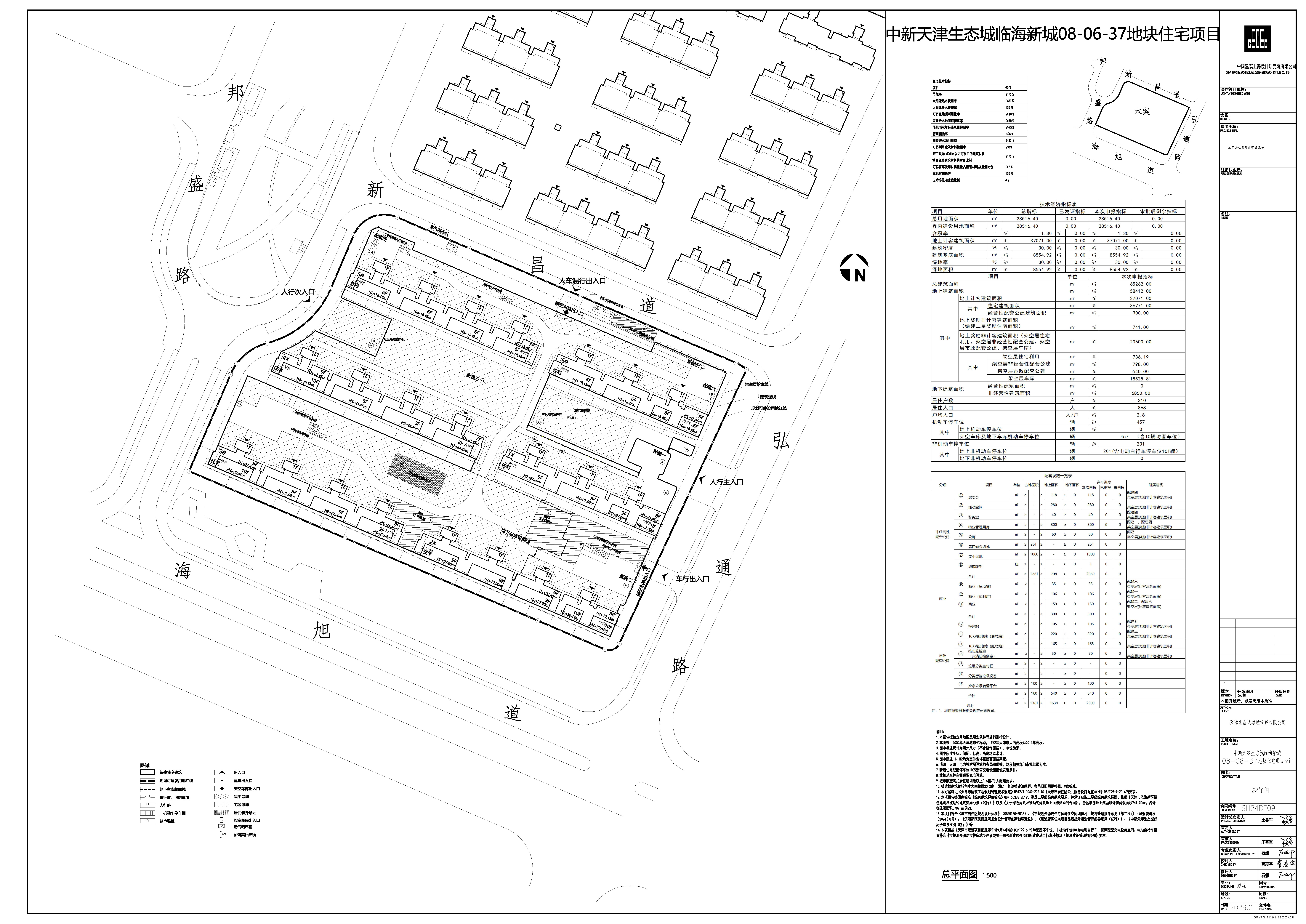
关于中新天津生态城临海新城08-06-37住宅地块项目建设工程设计方案总平面图的公布
2026-03-06
天津 审批|立项|规划
关于中新天津生态城临海新城08-06-37住宅地块项目建设工程设计方案总平面图的公布
天津-2026-03-06 00:00:00
天津-2026-03-06 00:00:00
关于中新天津生态城临海新城********住宅地块项目建设工程设计方案总平面图的公布
发布时间:
****年**月**日 **:**
发布来源:建设局
大
中
小
依据《中华人民共和国城乡规划法》、《天津市城乡规划条例》的有关要求,现将中新天津生态城临海新城********住宅地块项目建筑工程设计方案总平面图进行公布,公布期限为信息发布之日起至建设项目规划验收合格为止。

附件:



