第一章竞争性谈判邀请函
根据学校建设需要,我校拟采用竞争性谈判的方式确定**、**#教学楼电梯加装项目供应商。欢迎具备相应资格和履约能力的供应商前来投标。
一、项目名称:**、**#教学楼加装电梯项目
二、采购单位:武汉生物工程学院
三、招标形式:竞争性谈判
四、安装地点:武汉生物工程学院(武汉市阳逻经济开发区汉施大道*#)
五、谈判供应商资格要求
*.投标人应具备《中华人民共和国政府采购法》第**条规定的条件;
*.投标人必须是在中华人民共和国境内注册并取得营业执照的独立法人,具有相应经营范围;
*.具有国家特种设备安装改造维修许可证资质*级及以上资质;
*.必须具有电梯生产企业授权书;
*.投标人必须有承担过*项及以上相关项目的成功案例(须提供项目合同);
*.近三年内在经营活动中没有重大违法记录(包括约谈);
*.投标人必须提供近三年的财务状况报告(表);
*.本项目不接受联合体投标,项目执行过程中不允许转包、分包;
*.投标单位负责人为同一人或者存在直接控股、管理关系的不同投标人,不得同时参加本项目投标。
六、现场踏勘时间:****年**月**日*:**(集合地点:玉西楼***室)
七、谈判文件递交截止时间
*.谈判文件递交截至时间:****年**月**日**:**,逾期送达不予以接受,视为自动放弃,不得参加本次谈判。
*.谈判文件递交地点:武汉生物学院行政楼***室(学校监察处)。谈判文件外包装必须加盖密封章。
八、谈判保证金
*.谈判保证金:壹万元(现金或刷卡)。
*.缴纳地点:武汉生物工程学院财务处(行政楼一楼)。未缴纳谈判保证金不能办理谈判登记手续。
若未中标则此款在结果公示次日起*日内无息退还,若中标此款即转为履约保证金,有下列情况之一者此款不予退还:
(*)谈判人递交谈判响应文件后不参加谈判的;
(*)不按竞争性谈判文件规定提交谈判响应文件的;
(*)在谈判有效期内撤回投标的;
(*)在谈判过程中弄虚作假、串通投标等行为的;
(*)中标后恶意弃标的。
九、谈判时间与地点:另行通知
十、联系方式
商务咨询 周老师 ************
技术咨询 阮老师 ************
投诉电话 张老师 ************
第二章谈判人须知
十一、谈判文件的组成
谈判文件一式肆份,其中正本壹份,副本叁份,文件须密封加盖骑缝章,否则视为投标无效。其组成部分至少包含:
*.封面及目录(封面应注明项目名称、谈判供应商名称、联系人、联系电话、并正确表明“正本”“副本”字样);
*.开标一览表。此项须详细注明电梯品牌、规格型号、价格、电梯井道钢结构报价以及是否响应招标文件的要求;
*.符合谈判供应商资格要求的营业执照及其它资质证书等的复印件,盖单位公章;
*.法人身份证复印件、法人授权委托书、被委托人身份证复印件;
*.电梯配置及参数一览表(必须载明电梯品牌、规格型号、额定载重量、额定速度、层站数、开门方式、轿箱尺寸、开门尺寸、井道尺寸等)
*.电梯主要设备配置清单(主要部件名称、产地、生产厂家等)
*.电梯井道钢结构施工材料规格、施工方案;
*.投标人对投标标的、投标过程合法性以及工期承诺;
*.产品售后服务的内容;
**.投标文件中未响应招标文件的详细描述。
十二、售后服务:提供至少壹年以上的免费维修保养。
十三、招标文件的澄清
投标人若对招标文件存在疑问需要澄清,应在获取招标文件后,按招标文件规定的时间、地点以书面形式递交,招标人将对收到的疑问当面予以答复。
十四、招标文件的修改
*.在投标文件递交截止时间前招标人可主动或在答复投标人需要澄清的问题时对招标文件进行修改,修改的内容与招标文件具有同等效力。
*.招标人对招标文件的修改将以书面形式发给所有投标人。
*.为使投标人在准备投标文件时有合理的时间考虑招标文件的修改,招标人可根据规定酌情推迟投标文件递交截止日期。
十五、投标费用
投标费用系指投标人承担的所有与准备和递交投标文件有关的费用。无论投标过程和结果如何,招标人在任何情况下不负担投标人因本次投标所发生的一切费用。
十六、投标报价要求
投标人根据市场行情、企业自身实力,结合本项目特点及风险,自主确定供货单价,中标后供货单价一次包死。
十七、注意事项
*.投标人应阅读招标文件中所有须知、格式、条款等要求,投标人未按招标文件要求提供全部资料或提交的投标文件未对招标文件做出实质性响应,投标人将承担投标文件可能被拒绝的风险。
*.招标人在授予合同时有权对购置清单规定的物品数量予以增加或减少。
*.在评标期间,评标小组可能就投标文件向有关投标人进行询标,届时投标人须有熟悉投标方案并能决定投标文件中有关条款的授权代表参加。
十八、本次招标活动的最终解释权属武汉生物工程学院。
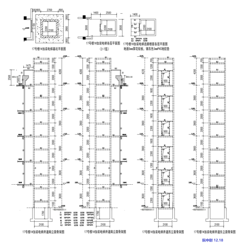
第三章加装电梯与井道技术参数
一、本项目为全包工程,投标单位负责电梯井道骨架、幕墙、窗户及电梯采购和安装。基坑开挖、基础施工、基坑施工及墙体破除等土建工程由校方负责。
二、投标单位负责完成有设计院盖章的电梯全套施工图(含基坑),以备电梯审验。
三、**#电梯参数
*.电梯类别:无机房电梯
*.采购数量:*部
*.电梯井道:钢结构
*.幕墙形式:铝单板幕墙
*.层站门:*/*/*(*部)、*/*/*(*部,第*层不停靠)
*.额定载重:******左右左右
*.额定速度:*.**/*
*.提升高度:**.*米
*.开门方式:中分式
四、**#电梯参数
*.电梯类别:无机房电梯
*.采购数量:*部
*.电梯井道:钢结构
*.幕墙形式:铝单板幕墙
*.层站门:*/*/*(*部)
*.额定载重:******左右左右
*.额定速度:*.**/*
*.提升高度:**.*米
*.开门方式:中分式
五、基坑井道参数
*.井道尺寸:*********
*.基坑深度:*.**
*.顶层高度:*.**
六、**、**#电梯基坑土、骨架图等







武汉生物工程学院资产与采购招标管理处
****年**月**日