询比采购公告安徽大厦2601-2604房装修改造项目[{unit}]
2025-09-11
安徽/请选择 招标采购
询比采购公告安徽大厦2601-2604房装修改造项目[{unit}]
安徽/请选择-2025-09-11 00:00:00

询比采购公告安徽大厦*********房装修改造项目

发布时间 : **********

一、项目基本情况

*.采购人:深圳安徽实业有限公司

*.项目名称:安徽大厦*********房装修改造

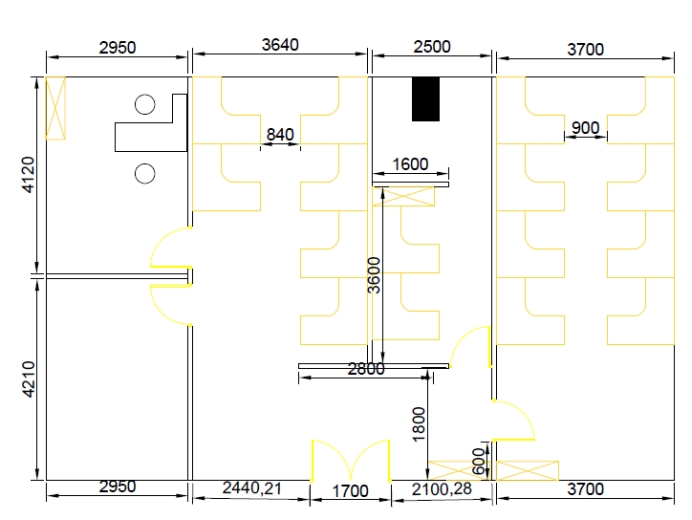
*.项目情况:本项目位于深圳市福田区安徽大厦**楼,*间独立办公室,精装修,面积约***平方米。现将该*间办公室改造装修成*个出租单元(详见平面图)。

*.采购范围:

拆除工程:原有部分隔断、老旧线路拆除等。

天花及地面工程:吊顶拆除与新建、灯具安装、新购和安装所有办公室门、面容识别门禁一套等。

墙面工程:墙体新建与改造、背景墙制作等。

强弱电工程:综合布线、开关插座安装、照明控制系统等。

消防改造:烟感、喷淋等消防设施的必要改造与报验(确保符合消防规范)。

空调系统:空调的检修、清洗、移位管道改造和吊扇*台等。

参与报价企业务必联系发包方了解具体改造项目(主要工程详见附件)

*.项目控制价:*.*万元。

*.项目工期:**个自然日

*.采购方式:询比采购(公开征集)

*.评审办法:综合评估法

二、供应商资格

*.具有独立承担民事责任能力的法人企业,持有有效的营业执照。

*.具备建筑装修装饰工程专业承包二级(或以上)资质。

*.具备有效的安全生产许可证。

*.近三年内(****年至今)具有至少*项类似规模或以上的办公空间装修改造工程业绩(需提供合同或中标通知书等证明)。

*.信誉良好,未被列入“信用中国”网站(***.***********.***.**)的失信被执行人、重大税收违法失信主体等名单。

*.本项目不接受联合体投标。

三、询比采购文件的获取

*.获取时间:*******日至*********:**。

*.询比采购文件获取:采购文件发布后,供应商应当通过安徽省投资集团控股有限公司招标采购信息化平台(*****://*****.*********.***/,以下简称招标采购信息化平台及深圳安徽实业有限公司(*****://***.*******.***/获取采购文件信息。

、响应文件递交截止时间及地点

*.响应文件递交截止时间:***********(北京时间);

*.响应文件递交地点:

请将纸质版响应文件应于****年*******分(北京时间)前邮寄或送达至下述地址:

人:深圳安徽实业有限公司

公司地址:广东省深圳市福田区沙头街道安徽大厦*楼深圳安徽实业有限公司

人:朱先生

话:*************,***********

纸质版响应文件要求:响应文件正本壹份报价单页应加盖公章。响应文件应密封包装,均需加盖供应商公章,装订成册,可以分册装订。并在封面上注明:采购人名称、项目名称、供应商名称,封口处加盖公章。

中标通知

中标通知:****年*****:**前将在安徽省投资集团控股有限公司招标采购信息化平台(*****://*****.*********.***/)及深圳安徽实业有限公司(*****://***.*******.***/公布中标结果。对中标结果有异议的,可以通过任何联系方式进行反馈,*****:**前未收到反馈,视同同意中标结果。

、招标采购监督信息

深圳安徽实业有限公司招标采购监督组

联系人:李女士

:*************

邮箱:*****@*****.***

深圳安徽实业有限公司

*******

附件*:工程项目列表

项目名称

项目特征和施工要求

数量

单位

现有玻璃隔断和石膏板隔断拆除

拆除完后打包清理

*

新建石膏板隔断

国标龙骨,双面不低于*厘石膏板,中间填充隔音棉

*

新墙安装踢脚线

*厘米高复合踢脚线

*

新墙批灰刷漆

使用立邦环保腻子及多乐士乳胶漆,批灰不低于两遍

*

新建玻璃隔断

四周不锈钢边框,国标**厘钢化玻璃

*

天花板及地面,窗台柜大理石修补

天花板破损处修补,地面破损处补瓷砖

*

旧墙及天花顶翻新

裂缝处及脱落处修补打磨后刷漆

*

漏水处补漏

漏水修复完后批灰刷漆

*

双开玻璃门、室内木质门

国标**厘钢化玻璃,含不锈钢门套,木质门

一副玻璃门、五扇木质门

面部识别门禁

品牌门禁

*

整屋布置强弱电

要求品牌国标阻燃线,六类网线

*

灯具,开关插座更换或增加

要求品牌国标灯具及开关插座

*

旧玻璃墙移位

旧墙移位及安装新不锈钢踢脚线

*

消防整改

按需求整改喷淋、烟感,安装应急灯及指示应急灯

*

仓库安装风扇

购品牌吊扇,含布线等

*

公区柱子装饰和**平方米墙面装饰拆除

拆除后使用立邦环保腻子及多乐士乳胶漆,批灰不低于两遍

*

备注:上述具体数量,需现场测量。

附件*:改造平面图

附件(点击附件名称下载):
附件(点击附件名称下载)
公告附件:
微信客服
公众号
小程序